HOME DESIGN
Home
Architecture
Resort
Living room
Bedroom
Bathroom
Kitchen
Contact
HOME DESIGN
Popular Posts
Modern Minimalist Interior by Sergey Baskakov
We found striking monochrome These concepts home by Sergey Baskakov, from Kemerovo, Russia, on HIS impressive 3D architectural visualizat...
MM House design by Studio MK27
Project: MM House Architecture: Studio MK27 Architect: Marcio Kogan Location: Bragança Paulista . sp . Brazil Project: June . 2009 Completio...
Tanjong Jara Resort
The Tanjong Jara Resort is located on the East Coast of Peninsular Malaysia, between Kuala Terengganu in the North and Kuantan in the So...
The Meera House by Guz Architects
The Meera House is another Singapore 's dream home designed by Guz Architects . This house is located on a new hous...
Westboro Home by Kariouk Associates
Westboro Home by Kariouk Associates Ottawa-based Kariouk Associates have designed the Westboro Home in Ontario, Canada Design Challe...
Luxury Fish House by Guz Architects
Photos by : Patrick Bingham - Hall The Fish House , located in Singapore , was designed by Guz Architects . Singapore is we...
Baan Moom by Integrated Field
Baan Moom by Integrated Field Integrated Field have designed Baan Moom, a house in Bangkok, Thailand. This house for a family of fi...
House With Floor To Ceiling Glass And Beautiful Nature Views
House With Floor To Ceiling Glass And Beautiful Nature Views This home located in the Kingston region of London is the perfect place for...
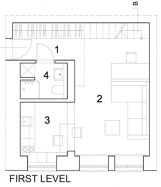
29 Square Meters by 3XA
29 Square Meters is a project located in Wroclaw, Poland and completed by 3XA. The entire apartment, as its name suggests, only covers an ...
Modern Apartment-3D Visualization
Source: Triple D Designs
ADviz Studio. Powered by
Blogger
.
Labels
Architecture
(29)
BATHROOM
(8)
BEDROOM
(10)
INTERIOR
(45)
KITCHEN Designs
(9)
LANDSCAPE
(10)
LIVING ROOM
(19)
Office
(1)
RELAX
(21)
Resort Residence
(12)
Followers
Labels
Architecture
(29)
BATHROOM
(8)
BEDROOM
(10)
INTERIOR
(45)
KITCHEN Designs
(9)
LANDSCAPE
(10)
LIVING ROOM
(19)
Office
(1)
RELAX
(21)
Resort Residence
(12)
Coming Soon
29 Square Meters by 3XA
29 Square Meters is a project located in Wroclaw, Poland and completed by 3XA.
The entire apartment, as its name suggests, only covers an area of 29 square meters - roughly 312 square feet.
<
>
No comments:
Post a Comment
Subscribe to:
Post Comments (Atom)
Popular Posts
Modern Minimalist Interior by Sergey Baskakov
We found striking monochrome These concepts home by Sergey Baskakov, from Kemerovo, Russia, on HIS impressive 3D architectural visualizat...
MM House design by Studio MK27
Project: MM House Architecture: Studio MK27 Architect: Marcio Kogan Location: Bragança Paulista . sp . Brazil Project: June . 2009 Completio...
Tanjong Jara Resort
The Tanjong Jara Resort is located on the East Coast of Peninsular Malaysia, between Kuala Terengganu in the North and Kuantan in the So...
The Meera House by Guz Architects
The Meera House is another Singapore 's dream home designed by Guz Architects . This house is located on a new hous...
Westboro Home by Kariouk Associates
Westboro Home by Kariouk Associates Ottawa-based Kariouk Associates have designed the Westboro Home in Ontario, Canada Design Challe...
Luxury Fish House by Guz Architects
Photos by : Patrick Bingham - Hall The Fish House , located in Singapore , was designed by Guz Architects . Singapore is we...
Baan Moom by Integrated Field
Baan Moom by Integrated Field Integrated Field have designed Baan Moom, a house in Bangkok, Thailand. This house for a family of fi...
House With Floor To Ceiling Glass And Beautiful Nature Views
House With Floor To Ceiling Glass And Beautiful Nature Views This home located in the Kingston region of London is the perfect place for...
29 Square Meters by 3XA
29 Square Meters is a project located in Wroclaw, Poland and completed by 3XA. The entire apartment, as its name suggests, only covers an ...
Modern Apartment-3D Visualization
Source: Triple D Designs
LABEL
INTERIOR
(45)
Architecture
(29)
RELAX
(21)
LIVING ROOM
(19)
Resort Residence
(12)
BEDROOM
(10)
LANDSCAPE
(10)
KITCHEN Designs
(9)
BATHROOM
(8)
Office
(1)
Total Pageviews
FANPAGE
No comments:
Post a Comment